Produktionsdaten / Techn. Zeichnungen

Erklärung

Um Produkte wirtschaftlich zu gestalten und einen reibungslosen Ablauf der Produktionsprozesse zu garantieren, muss die Fertigung geplant und gesteuert werden. Grundlage hierfür sind Produktionsdaten.

Diese umfassen zum Beispiel Steuerungsdaten, Kommunikationsdaten, Terminierung, Materialdaten, Reihenfolgenplanung, Losgrößen, Zuständigkeiten, Toleranzen, technische Daten, usw. und beinhalten damit Rahmenbedingungen zu Arten, Qualität und Mengen industrieller Leistungen (qualitative und quantitative Komponenten).

TECHNISCHE ZEICHNUNGEN
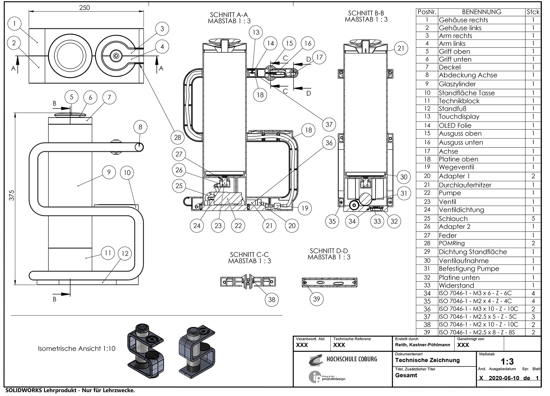
Zur den Produktionsdaten bzw. zur technischen Produktdokumentation gehören auch technische Zeichnungen. Das sind Dokumente, die hauptsächlich in grafischer und teilweise in schriftlicher Form alle notwendigen Informationen für die Herstellung und zur Beschreibung der geforderten Funktionen und Eigenschaften eines Einzelteils, einer Baugruppe oder eines kompletten Produktes zeigen (DIN 199).

Arten von Zeichnungen
Technische Zeichnungen werden gebraucht für:
+ die Herstellung der Bauteile = Einzelteile- Zeichnung
+ die Montage der Bauteile zu Bauteilgruppen und Fertigprodukten = Zusammenstellungs- Zeichnung
+ Reparaturanleitungen (inkl. Ersatzteilkataloge)
+ Gebrauchsanleitungen
+ Publikationen / Visualisierungen (inkl. Prospekte)

Einzelteile- Zeichnungen
+ Ansichten von außen oder auf gedachte Schnittflächen (Schnittzeichnung) des Teils
+ alle Konturen sind mit Maßangaben versehen
+ die Art der Oberflächen ist gekennzeichnet
+ die Art des Werkstoffs
+ handelsübliche Halbzeugform (z.B. Profile, Stangen, Rohre und Platten); Normteil (z.B. Schrauben) oder Zukaufteile (z.B. Display)
+ die Herstellmethode (spanende Fertigung, Gießen o. a.)
+ evtl. eine thermische und eine Oberflächen-Nachbehandlung (z.B. Metallisieren, Pulverlackieren)

Zusammenstellungs- Zeichnungen („ZUS-Bau“)
+ Darstellungen die das Zusammensetzen der Einzelteile und deren gemeinsame Funktion verdeutlichen
+ Montage und Reparatur
+ erleichtern das Verständnis für das Produkt

Ziel

Umfassende Produktionsdaten ermöglichen eine optimale Produktion. Dadurch werden beispielsweise Kapazitäten voll ausgenutzt, Termine vorgegeben, Weisungsbefugnisse und Zuständigkeiten abgeklärt.

Das führt zu einer wirtschaftlichen Produktion mit reduzierten Kosten. Sämtliche Geschäftsprozesse werden beschleunigt. Diese können zudem durch höhere Transparenz und verbesserte Kommunikation und Informationsaustausch besser kontrolliert und gesteuert werden.

Vorgehen

Produktionsfaktoren, die im Einzelnen festgelegt werden müssen, sind:

Organisatorisches:

  • Wer übernimmt Zuständigkeiten und Verantwortung wofür?
  • An wen wendet man sich bei Schwierigkeiten in der Produktion?
  • Wer organisiert was?
  • Personelle und maschinelle Kapazitäten müssen berücksichtigt werden.
  • Welche einzelnen Arbeitsplätze werden gebraucht (Lager, interne Lagerhaltung und Logistik, Montage, Verpackung, Versand…)?
  • Mitarbeiter/-gruppen müssen eingeteilt werden.
  • Arbeitsplätze müssen ausgestattet und besetzt werden.
  • Wer übernimmt Fertigungsaufträge?

 

Finanzielles:

  • Wie viel Spielraum lässt die Produkt- und Produktionskalkulation?
  • Wer übernimmt und überwacht die Kalkulation?

 

Produktionsbezogenes:

  • Findet die Produktion in Kooperation statt?
  • Wird in-house gefertigt oder ist die Fertigung ausgelagert?
  • Welche Komponenten/Normteile werden zugekauft?
  • Wo werden Ressourcen gelagert?
  • Was passiert mit Vor-, Zwischen- und Endprodukten?
  • Welche Materialien/Zukaufteile werden, wann benötigt?

 

Produktionsplanung:

  • Die technischen Daten des Produkts müssen exakt erarbeitet sein.
  • Stücklisten müssen korrekt vorliegen.
  • Welche Produktstückzahl ist geplant?
  • Wie hoch sind Zwischenproduktmengen?
  • Wie hoch ist die jährliche Charge?
  • Können Aufträge mehrstufig durchgeführt werden?
  • Gibt es eine mögliche Parallelität/Zusammenführung?
  • Wie läuft die Ablaufplanung?
  • Wer übernimmt die Arbeitsplanung?
  • Gibt es alternative Arbeitsfolgen?
  • In welcher Reihenfolge werden die Produktionsanlagen bestückt?

 

Terminierung:

  • Terminplanungen müssen festgelegt und kommuniziert werden.
  • Wer übernimmt die Feinterminierung?
  • Die Auftrags- und Terminverfolgung muss stattfinden.
  • Wie lang sind Lieferzeiten?
  • Welche Durchlaufzeiten haben Maschinen?
  • Zu welchen Zeitpunkten erfolgt die Herstellung der einzelnen End- und Zwischenproduktmengen?

 

Produktion:

  • Werden Betriebsdaten/Maschinendaten berücksichtigt?
  • Welche Betriebsmittel sind nötig?
  • Wie ist die Betriebsmittelbelegung?
  • Welches Anwendungssystem wird genutzt?
  • Welche Produktionsmaschinen werden benötigt?

 

Kontrolle:

  • Wer übernimmt die Dokumentation?
  • Wer dokumentiert Chargen und Qualität?
  • Welche Kontrolldaten müssen berücksichtigt werden?

 

Tipp

Gerade im Zuge der Industrie 4.0, also der Digitalisierung von Industrie, wird umfangreiche, für Beteiligte zugängliche, transparente Dokumentation der Produktionsdaten (Konstruktion, Produktion, Logistik, Service,…) zwecks Prozessoptimierung immer wichtiger.

Quellen

Einführung in Beschaffung und Produktion / Prof. Michael Eßig
wikipedia.de
Lehrstuhl und Institut für Allgemeine Konstruktionstechnik des Maschinenbaus RWTH Aachen – Univ.-Prof. Dr.-Ing. Jörg Feldhusen

Studienarbeit:
Bewegungsmelder – Jansen – Ulrich – SS 16
Design it yourself – Grimm – Herrmann – SS 15
Handmixer – Buchberger – Wolf – SS18
Innovativer Staubsaugerbeutel – Bauer, Ulrich – WS 18/19
Wecker mit Lichtfunktion – Selg, Tissot – SS 2019
EuK4_Heißwasserspender – Reith_KastnerPoehlmann & Geyer,Selg & Madlangbayan, Tissot – SS20

Beispiele

ToolsProduktionsdaten / Techn. Zeichnungen